Nowe mieszkanie Chropaczów, ul. Sudecka 10
Sudecka 10, Chropaczów, Świętochłowice, śląskie
- 310 000 zł
- 27,73 m²
- 11 179,23 zł/m²
Biuro sprzedaży
Skontaktuj się
Nowe mieszkanie Chropaczów, ul. Sudecka 10
Sudecka 10, Chropaczów, Świętochłowice, śląskie
zaktualizowane:
14 lipca 2025
Nowe mieszkanie Chropaczów, ul. Sudecka 10
Inwestycja: Baja Piaśniki
Zaktualizowane: 14 lipca 2025
310 000 zł 27,73 m² 11 179,23 zł/m²
II kwartał 2026
3/3
1
garaż
deweloperski
Zobacz na mapie
Termin realizacji:
II kwartał 2026Piętro:
3/3Liczba pokoi:
1Miejsce postojowe:
garażStan mieszkania:
deweloperskiSzczegóły ogłoszenia
- Typ oferty: nowe mieszkanie na sprzedaż
- Cena: 310 000 zł (11 179,23 zł/m²)
- Termin realizacji: II kwartał 2026
- Status oferty: dostępne
- Rynek: pierwotny (oferta dewelopera)
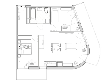
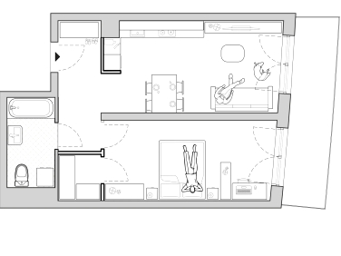
- Charakterystyka mieszkania: 27,73 m², 1 pokój, 1 łazienka; stan: deweloperski
- Budynek: apartamentowiec
- winda
- Rozkład mieszkania: piętro 3/3, jednopoziomowe
- Powierzchnia dodatkowa: balkon (1,6 m²)
- Kuchnia: aneks kuchenny
- Miejsce/a postojowe: w garażu wielostanowiskowym, przynależne do mieszkania - bez obowiązku zakupu; garaż w bryle budynku, winda z poziomu garażu
naziemne, przynależne do mieszkania - bez obowiązku zakupu - Bezpieczeństwo: monitoring
- Źródło: oferta dewelopera: Buildman, zaktualizowane: 14.07.2025
- sygnatura ogłoszenia: M48
Lokalizacja
- Inwestycja: Baja Piaśniki
- Adres: Sudecka 10, Chropaczów, Świętochłowice, śląskie
- Otoczenie: osiedle bloków mieszkalnych, osiedle domów wielorodzinnych, tereny zielone i rekreacyjne, obiekty handlowo-usługowe
- Na terenie inwestycji: plac zabaw, rowerownia, wózkownia
- W pobliżu przedszkole, szkoła podstawowa, szkoła średnia, siłownia, basen, przychodnia, szpital, przystanek autobusowy, przystanek tramwajowy, supermarket, centrum handlowe, park, plac zabaw
Opis nieruchomości
Kompaktowa kawalerka z balkonem, zlokalizowana w inwestycji Baja Piaśniki w Świętochłowicach. (...)
| MieszkanieM77 | 64,52 m² | 9 299,44 zł/m² | 2/3 | 4 | 600 000 zł |
| Mieszkanie | ||||
|
||||
| M77 |
- Budynek: apartamentowiec
- Stan wykończenia: deweloperski, możliwe wykończenie "pod klucz", możliwe wykończenie wg projektu klienta
- Charakterystyka mieszkania: jednopoziomowe, aneks kuchenny, 1 łazienka
- Ogrzewanie: miejskie
- Powierzchnia dodatkowa: balkon (36,7 m²)
- Miejsce/a postojowe:: w garażu wielostanowiskowym; garaż w bryle budynku, winda z poziomu garażu
naziemne - Udogodnienia: winda
Mieszkanie narożne, trójstronne z dużym balkonem, zlokalizowane w inwestycji Baja Piaśniki w Świętochłowicach.
Więcej
sygnatura: M77
| MieszkanieM69 | 42,83 m² | 9 105,77 zł/m² | 1/3 | 2 | 390 000 zł |
| Mieszkanie | ||||
|
||||
| M69 |
| MieszkanieM67 | 65,32 m² | 8 955,91 zł/m² | parter/3 | 4 | 585 000 zł |
| Mieszkanie | ||||
|
||||
| M67 |
| MieszkanieM54 | 80,35 m² | 8 960,80 zł/m² | 3/3 | 3 | 720 000 zł |
| Mieszkanie | ||||
|
||||
| M54 |
| MieszkanieM47 | 61,86 m² | 8 729,39 zł/m² | 2/3 | 3 | 540 000 zł |
| Mieszkanie | ||||
|
||||
| M47 |
| MieszkanieM43 | 66,85 m² | 10 022,44 zł/m² | 2/3 | 3 | 670 000 zł |
| Mieszkanie | ||||
|
||||
| M43 |
| MieszkanieM39 | 48,25 m² | 9 222,80 zł/m² | 2/3 | 2 | 445 000 zł |
| Mieszkanie | ||||
|
||||
| M39 |
| MieszkanieM26 | 66,85 m² | 9 723,26 zł/m² | 1/3 | 3 | 650 000 zł |
| Mieszkanie | ||||
|
||||
| M26 |
| MieszkanieM22 | 49,01 m² | 8 773,72 zł/m² | 1/3 | 2 | 430 000 zł |
| Mieszkanie | ||||
|
||||
| M22 |
| MieszkanieM10 | 49,92 m² | 8 713,94 zł/m² | parter/3 | 2 | 435 000 zł |
| Mieszkanie | ||||
|
||||
| M10 |
Więcej
Biuro sprzedaży
799 370...
799 370 723











